







ANCHOR BAY CLUB Condominium
300 Three Islands Blvd #PH4A, Hallandale Beach, Florida, 33009
| Status | Active |
| Beds | 2 |
| Baths | 2 |
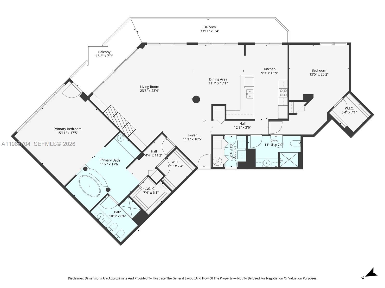
| Living area | 1984 |
| Days on Market | 18 |
| Maintenance | 1511 |
| Pets Allowed | Yes |
| Listed | One Sotheby’s International Realty |
Spectacular Penthouse Residence in Anchor Bay offering breathtaking panoramic views of the Intracoastal Waterway and the ocean beyond. This bright and spacious residence features expansive windows and a private terrace perfectly positioned to capture stunning water views, vibrant boating activity, and beautiful sunsets.
Spacious penthouse 2 bedrooms & 2 bathrooms with 1,984 sq. ft. of living space and the potential to convert into a 3-bedroom . Every room features ocean views. Open kitchen , living room and fireplace adds warmth and charm, giving the home a distinctive character.
Residents enjoy a full-service luxury building with premium amenities including a waterfront pool, fitness center, secured lobby, tennis courts, marina access, and two covered parking spaces. Boating enthusiasts will appreciate the opportunity to own or rent a boat slip, offering direct Intracoastal access and effortless navigation to the ocean.
Ideally located just minutes from Golden Beach, Aventura Mall, Gulfstream Park, fine dining, and pristine beaches, this penthouse offers the perfect blend of waterfront lifestyle, comfort, and convenience.
A rare opportunity to own a penthouse with exceptional views and endless potential in one of the area’s most desirable waterfront communities
City:Hallandale Beach,View:1:Intracoastal View,2:Ocean View,3:Pool Area View,4:Water View,View Y N:1,Cooling:1:Central Air,List A O R:A-Miami Association of REALTORS,Tax Year:2025,Electric:1:Fuse Box,Flooring:1:Tile,Garage Y N:1,Latitude:25.9904184,Cooling Y N:1,Furnished:Furnished,Heating Y N:1,List Price:880000,Listing Id:A11968704,Longitude:-80.1253958,Mls Status:Active,Ownership:Self Proprietor/Individual,Year Built:1988,Appliances:1:Disposal,2:Dryer,3:Electric Water Heater,4:Free-Standing Freezer,5:Gas Water Heater,6:Ice Maker,7:Microwave,8:Electric Range,9:Gas Range,10:Refrigerator,11:Wall Oven,Entry Level:22,High School:Hallandale High,Inclusions:Community Boat Dock,Dock Available,Living Area:1984,Postal Code:33009,Street Name:Three Islands Blvd,Unit Number:PH4A,Coordinates:1:25.9904184,Photos Count:41,Building Name:ANCHOR BAY CLUB,Days On Market:18,Garage Spaces:2,Listing Terms:1:Assumable,2:Conventional,Lot Size Units:Square Feet,M I A M I R E_ Area:3040,M L S Area Major:Anchor Bay Club Condo,On Market Date:2026-03-05,Parcel Number:514223BK1570,Property Type:Residential,Stories Total:22,Street Number:300,Waterfront Y N:1,Association Y N:1,Bathrooms Full:2,Bedrooms Total:2,Covered Spaces:2,M I A M I R E_ Style:Condo 5+ Stories,Public Remarks:Spectacular Penthouse Residence in Anchor Bay offering breathtaking panoramic views of the Intracoastal Waterway and the ocean beyond. This bright and spacious residence features expansive windows and a private terrace perfectly positioned to capture stunning water views, vibrant boating activity, and beautiful sunsets. Spacious penthouse 2 bedrooms & 2 bathrooms with 1,984 sq. ft. of living space and the potential to convert into a 3-bedroom . Every room features ocean views. Open kitchen , living room and fireplace adds warmth and charm, giving the home a distinctive character. Residents enjoy a full-service luxury building with premium amenities including a waterfront pool, fitness center, secured lobby, tennis courts, marina access, and two covered parking spaces. Boating enthusiasts will appreciate the opportunity to own or rent a boat slip, offering direct Intracoastal access and effortless navigation to the ocean. Ideally located just minutes from Golden Beach, Aventura Mall, Gulfstream Park, fine dining, and pristine beaches, this penthouse offers the perfect blend of waterfront lifestyle, comfort, and convenience. A rare opportunity to own a penthouse with exceptional views and endless potential in one of the area’s most desirable waterfront communities,Structure Type:1:Condo,Association Fee:1511,County Or Parish:Broward County,Direction Faces:East,Expiration Date:2026-08-31,List Office Name:One Sotheby’s International Realty,Standard Status:Active,Window Features:1:Hurricane Shutters,2:Sliding,Living Area Units:Square Feet,Major Change Type:New,Parking Features:1:Assigned,2:Covered,Postal Code Plus4:2893,Property Sub Type:Condominium,State Or Province:FL,Subdivision Name:ANCHOR BAY CLUB CONDO,Tax Annual Amount:12688,Unparsed Address:300 Three Islands Blvd, Hallandale Beach FL 33009,Attached Garage Y N:1,Exterior Features:1:Tennis Court(s),Interior Features:1:First Floor Entry,2:Built-in Features,3:Cooking Island,Listing Agreement:Exclusive Right To Sell,M I A M I R E_ Blogging:1,Security Features:1:Smoke Detector,2:Guard At Site,3:Lobby Secured,Year Built Details:Resale,Building Area Total:1984,Building Area Units:Square Feet,Leasable Area Units:Square Feet,M I A M I R E_ Flood Zone:AE,X,M I A M I R E_ L P Amt Sq Ft:443.5484,Original List Price:880000,Public Survey Range:51,Architectural Style:1:Penthouse,I D X Participation Y N:1,M I A M I R E_ N A R Rules Y N:1,Number Of Units Total:158,Syndication Remarks:Spectacular Penthouse Residence in Anchor Bay offering breathtaking panoramic views of the Intracoastal Waterway and the ocean beyond. This bright and spacious residence features expansive windows and a private terrace perfectly positioned to capture stunning water views, vibrant boating activity, and beautiful sunsets. Spacious penthouse 2 bedrooms & 2 bathrooms with 1,984 sq. ft. of living space and the potential to convert into a 3-bedroom . Every room features ocean views. Open kitchen , living room and fireplace adds warmth and charm, giving the home a distinctive character. Residents enjoy a full-service luxury building with premium amenities including a waterfront pool, fitness center, secured lobby, tennis courts, marina access, and two covered parking spaces. Boating enthusiasts will appreciate the opportunity to own or rent a boat slip, offering direct Intracoastal access and effortless navigation to the ocean. Ideally located just minutes from Golden Beach, Aventura Mall, Gulfstream Park, fine dining, and pristine beaches, this penthouse offers the perfect blend of waterfront lifestyle, comfort, and convenience. A rare opportunity to own a penthouse with exceptional views and endless potential in one of the area’s most desirable waterfront communities,Waterfront Features:1:No Fixed Bridges,Listing Contract Date:2026-03-05,Originating System I D:miamire,Public Survey Section:23,Room Bedroom Features:1:Primary Bath Tub,Showing Instructions:24 Hour Notice,Call Listing Agent,Showing Assist,Street Number Numeric:300,Tax Legal Description:ANCHOR BAY CLUB CONDO UNIT P-4A PER CDO BK/PG: 14431/339,Association Amenities:1:Boat Dock,2:Clubhouse-Clubroom,3:Community Room,4:Elevator(s),5:Exercise Room,6:Heated Pool,7:Marina,8:Pool,9:Tennis Court(s),10:Trash Chute,M I A M I R E_ Current Price:880000,M I A M I R E_ Restrictions:1:Other Restrictions,Public Survey Township:51,Bathrooms Total Decimal:2,Bathrooms Total Integer:2,M I A M I R E_ Municipal Code:0,M I A M I R E_ Neighborhoods:GOLDEN BEACH,M I A M I R E_ Pets Allowed Y N:1,Originating System Name:Miami Association of REALTORSยฎ,M I A M I R E_ Adjusted Area S F:1984,M I A M I R E_ Application Fee:150,M I A M I R E_ Geographic Area:Hollywood East (3010-3050),Room Dining Room Features:1:Dining/Living Room,2:Snack Bar/Counter,Association Fee Frequency:Monthly,M I A M I R E_ Internet Remarks:Penthouse with Intracoastal & ocean views. 2BD/2BA,1,984 SF, convertible to 3BD.Terrace,marina access, pool, tennis,2 parking.Near Aventura & beaches.,M I A M I R E_ Parcel Number M L X:1570,M I A M I R E_ Showing Time Flag:1,M I A M I R E_ Street View Param:1$25.990007604989252$-80.12618440012542$48.30$13.33$1.00$oyT0LOHYmW86fd5Y9NAFsg,Contract Status Change Date:2026-03-05,Internet Address Display Y N:1,M I A M I R E_ Cable Available Y N:1,Number Of Units In Community:158,Internet Consumer Comment Y N:1,M I A M I R E_ Furnished Info List:Furnished,M I A M I R E_ Ok To Advertise List:No,M I A M I R E_ Num Times Leased Year:1,M I A M I R E_ Agent Alternate Phone:786-267-7320,M I A M I R E_ Maintenance Includes:1:Common Area,2:Internet/WiFi,3:Parking,4:Pest Control Interior,5:Security,6:Water,M I A M I R E_ Typeof Governing Bodies:Condominium,Internet Entire Listing Display Y N:1,M I A M I R E_ Address Internet Display:300 Three Islands Blvd PH4A,M I A M I R E_ Balcony Porchandor Patio Y N:1,M I A M I R E_ Minimum Numof Daysfor Lease:180,M I A M I R E_ R A T I O_ Current Price_ By_ S Q F T:443.55,Internet Automated Valuation Display Y N:1,
| Year Build | 1988 |
| Short Sale | No |
| REO | No |
| Furniture | Furnished |
| Waterfront | Intracoastal Front, No Fixed Bridges |
| Tax Amount | 12688 |
| Tax Year | 2025 |
| Restrictions | No Lease-1st Year Owned, Other Restrictions |
| Amenities | Bike Storage, Boat Dock, Clubhouse-Clubroom, Community Room, Elevator(s), Exercise Room, Heated Pool, Marina, Pool, Tennis Court(s), Trash Chute |
| Type of Property | Condominium, Condo 5+ Stories, Condo |
Posted Mar 10, 2026
Published March 10, 2026
Last updated:Mar 23, 2026 10:34am
Updated Mar 23, 2026 10:34am


































